Adjust the distance from the edge of the printed paper to the center of punch holes in Punch Kit PK-522 mounted on Finisher FS-532.
Objects of adjustment: Offset for All Size, A3 short edge feed, A4 long edge feed, A4 short edge feed, SRA4 short edge feed, A5 long edge feed, B4 short edge feed, B5 long edge feed, 8K short edge feed, 16K long edge feed, 16K short edge feed, 8.5 14 short edge feed, 8.5 11 long edge feed, 8.5 11 short edge feed, 12 18 short edge feed, 11 17 short edge feed, 8 13 short edge feed, 5.5 8.5 long edge feed, 9 11 long edge feed, B5 short edge feed
If a numeric value is specified for Offset for All Size, it is applied to all paper sizes. With a specific paper size selected,the set value becomes the sum of the entered value and the value previously specified for Offset for All Size.
Press Adjustment on the MACHINE screen to display the Adjustment Menu screen.
Press Finisher Adjustment, Staple Finisher Adjustment, Staple Finisher(Punch) Adj., and Horizontal Position Adj.(FD) in sequence.
Select the size to be adjusted using down or up. 
Press Print Mode.
Load the paper size selected in step 3, then select that tray key.
supplementary explanationFor Output Setting, Punch is automatically selected.
Press Start on the control panel.
A sample pattern will be output.
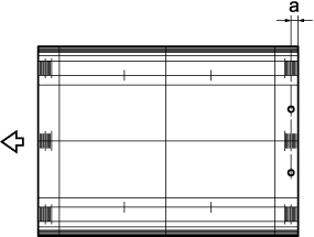
Measure the distance (a) from the edge of the printed paper to the center of punch holes.
supplementary explanationAllowance: a = 12 mm ± 3 mm

Press Exit PrintMode to return to the Horizontal Position Adj.(FD) screen.
If any adjustment is required, use the touch panel keypad to enter the set value.
supplementary explanationAdjustment Range: (Far) -50 to +50 (Close) (1 step = 0.1 mm)
supplementary explanationPress +/- to specify the value to be positive or negative.
Press Set to change the setting with the Current Data.
Repeat steps 4 to 10 until the desired result is obtained.
Press Return.
The screen returns to the Staple Finisher(Punch) Adjustment Menu screen.