Enter the measurement value after printing a chart and measuring the measuring points with scale.
Because the positions of both sides can be adjusted by only entering measurement values, this adjustment is useful for 2-sided printing with a new paper type or when the amount of misalignment between both sides is unknown after changing the paper in the tray.
Press Both Sides on the MACHINE screen.
Select the tray in which the papers to be adjusted have been set.
Press Front, and then press Chart Adjustment.
Press Print Mode.
Press Start on the control panel.
A test chart is printed.
Press Exit PrintMode.
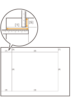
Measure the line length of each point from [1] to [8] in the output chart.
supplementary explanationThe figure shows an example where [1] and [5] are measured.
supplementary explanationYou can enter a value in 0.1 mm increments.
supplementary explanationBe sure to make note of the measurement lengths.

Press the number of each point, and use the touch panel keypad or downup to enter the measured length.
supplementary explanationPress Clear to reset the value.
To start the adjustment, press Adjustment Start.
supplementary explanationIn the next step, adjust the back side.
Press Back, and then press Chart Adjustment.
Press Print Mode.

Press Start on the control panel.
A test chart is printed.
supplementary explanation
mark is printed on the front side <Front Side> so that you can recognize which tray output the chart. For details, refer to Chart.
Press Exit PrintMode.
Measure the misalignment between
of [1] to [4] on the back side <Back Side> and
on the front side <Front Side> of the printed chart.
supplementary explanationThe figure shows an example to measure [1]. The scale resolution is 0.5 mm.
supplementary explanationThe black
in the figure indicates the front side, and the blue
indicates the back side.
supplementary explanationMeasure the X and Y directions to check the misalignment of print position.
supplementary explanationYou can enter a value in 0.1 mm increments.
supplementary explanationBe sure to make note of the measurement values.
supplementary explanationFor example, when
of [1] is misaligned leftward (plus side of X direction) by 2.0 mm and downward (minus side of Y direction) by 1.5 mm from the one on the front side as shown in the figure, press in order of 20+/- and enter -2.0 to correct and move rightward (minus side of X direction) the blue line on the back side by 2.0 mm in the X direction. And also press in order of 15 and enter +1.5 to correct and move upward (plus side of Y direction) by 1.5 mm in the Y direction.

Press X or Y of each point, and use the touch panel keypad or downup to enter the measurement value.
supplementary explanationIf the print position is misaligned rightward or downward (minus side), enter a positive value. If misaligned leftward or upward (plus side), enter a negative value.
supplementary explanationUse +/- to specify the value to be positive or negative.
supplementary explanationPress Clear to reset the value.

To start the adjustment, press Adjustment Start.
Press Close.
Now, the Chart Adjustment is completed.
supplementary explanationFor fine adjustment, perform [Zoom]/[Image Shift] Adjustment.