Adjust the staple position in Saddle Stitcher SD-513. Reduce the misalignment between the stapling positions and folding line.
Press Adjustment on the MACHINE screen to display the Adjustment Menu screen.
Press Finisher Adjustment, Saddle Stitcher Adjustment, and Staple Offset Adjustment in sequence.
Press Print Mode.
Load A3 short edge feed or 11 17 short edge feed paper in any tray, and select the button of the tray.
Press Start on the control panel.
A sample pattern will be output.
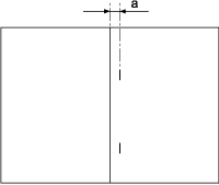
Measure misalignment a between the folding line and staple positions.
Allowance: a = ± 1 mm
Press Exit PrintMode to return to the Staple Offset Adjustment screen.
If any adjustment is required, use the touch panel keypad to enter the set value.
Adj. Range: -10~+10 1 step = 0.1 mm
[-] To move leftward [+] To move rightward
supplementary explanationUse +/- to specify the value to be positive or negative.
Press Set to change the Current Value.
Repeat steps 3 to 9 until the desired result is obtained.
Press Return.
The screen returns to the Saddle Stitcher Adjustment Menu screen.